REFERENZEN

Wohn- und Geschäftshaus Jüdenstraße 9

Wohn- und Geschäftshaus Jüdenstraße 9

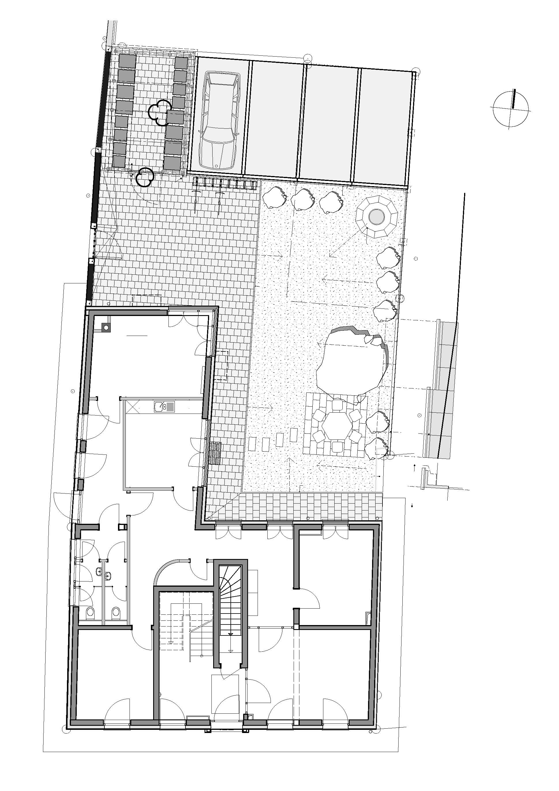
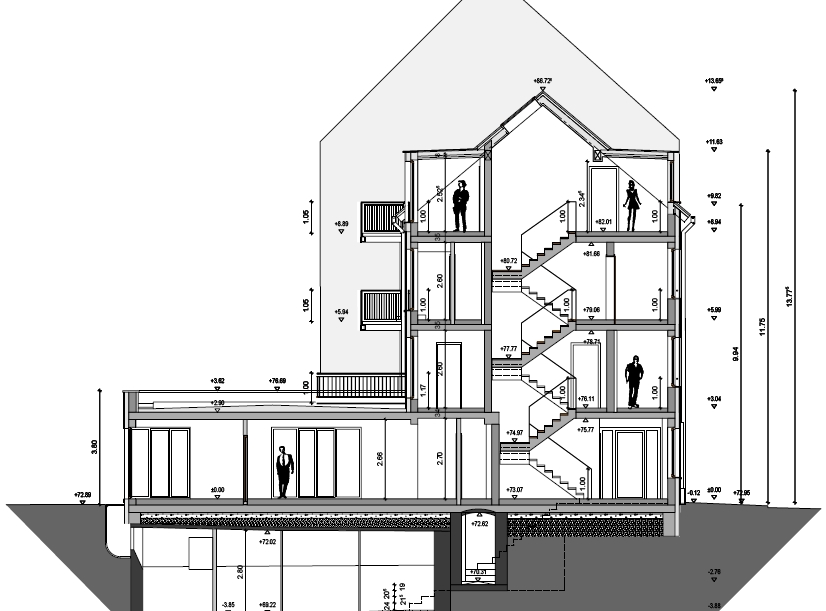
In der Innenstadt wurde im Jahr 2019 durch die WIGEWE – Gesellschaft für Wohneigentum mbH Wittenberg in der Jüdenstraße 9 ein Wohn- und Geschäftshaus gebaut. Das alte Bäckereigebäude samt Hofbebauung stand seit Jahren leer. Da der Verfall der Bausubstanz bereits so weit fortgeschritten war, wurde das gesamte Ensemble bis Oberkante Gelände abgetragen und auf den zu erhaltenen Gewölbekeller ein neues Gebäude errichtet. Der entstandene Baukörper ist ein dreigeschossiger Massivbau mit ausgebautem Dachgeschoss. Das Erdgeschoss schiebt sich entlang der Töpferstraße aus dem Baukörper heraus, fasst die Straßenfront und erzeugt innerhalb der Bebauung eine Hofsituation. Im Dach hat man straßenseitig 4 kleine Gauben und hofseitig 2 große Gauben aufgesetzt. Das Gebäude erhielt, bezugnehmend zum Bestand, eine streng symmetrische Erscheinungsform mit einer fünfachsigen vertikalen Gliederung. Die Fensteröffnungen wurden mit einer umlaufenden Fasche gefasst, der zentral gelegene Hauptzugang mit einem Portal hervorgehoben. Die Erschließung des Grundstückes und des Büros erfolgt über die Töpferstraße. Der Hauptzugang zu den Wohnungen befindet sich an der Jüdenstraße. Die vertikale Erschließung innerhalb des Hauses wird über ein zentrales Treppenhaus gewährleistet. Das gesamte Erdgeschoss, sowie ein Teilbereich des 1. Obergeschosses wird als Büro genutzt. In den übrigen Etagen befinden sich insgesamt 3 Wohnungen. Der obere Abschluss des herausstehenden Erdgeschossteils wird im 1. Obergeschoss teilweise als Dachterrasse genutzt. Die anderen Wohnungen haben jeweils einen Balkon auf der Hofseite des Gebäudes.

Zurück